Dawson Creek’s campus housing has one, two, three, and four bedroom suites; as well as a two bedroom wheelchair-accessible suite on each floor.

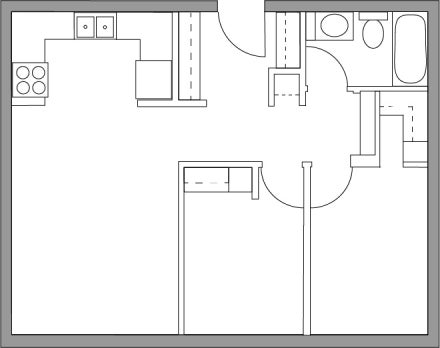
One Bedroom Suite


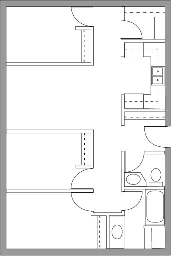
Two Bedroom Suite


Two Bedroom Wheelchair Accessible Suite

The two bedroom accessible suite is the same as the regular two bedroom suite in Dawson Creek housing, but has added accessibility features.


Three Bedroom Suite Floor Plan

There are currently no photos of the three bedroom suite available .

Four Bedroom Suite

There are two styles of four bedroom suite. Only one is pictured, but both floor plan types are here on campus.